Kalkhennep Huis
Ontwerp
In opdracht van een particuliere opdrachtgever hebben wij het kalkhennep huis mogen ontwerpen. Deze woning is zoals de naam al doet vermoeden geïsoleerd met het duurzame biobased materiaal kalkhennep. De woning is gelijkvloers met hoge plafonds. Het moderne witte stucwerk heeft een mooi contrast op de zichtbare houten constructie van de woning. Ook rond de kozijnen wordt hout toegepast om het stucwerk incidenteel te onderbreken. De dakvlakken komen op verschillende hoogtes bij elkaar, waardoor er ruimte ontstaat voor daglicht in de centrale hal.
Programma
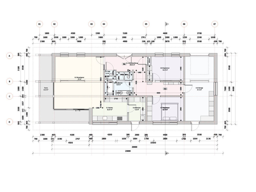
De entree aan de noordzijde geeft toegang aan de centrale entreehal. Vanuit deze hal zijn alle ruimtes ontsloten. Centraal in de woning liggen de sanitaire ruimtes, Aan de oostzijde liggen de slaapvertrekken met aan het einde de inpandige garage. Aan de westzijde is de woonkamer/keuken te betreden. Aan de woonkamer is een overdekte veranda als een verlening van de woonruimte.
Materialisatie
De woning is opgebouwd met biobased materialen. Zo is de Hoofddraagconstructie volledig van hout en geïsoleerd met kalkhennep. Hierdoor ontstaat een vochtregulerende schil welke bijdraagt aan een comfortabel en gezond binnenklimaat. De woning is afgewerkt met modern stucwerk in combinatie met natuurlijk hout. De houten constructie is bewust binnen en buiten zichtbaar gehouden.
Project informatie
Locatie Almere
Ontwerp 2019
Realisatie 2021
Oppervlakte 160m²
Ontwerp Arc2 architecten
Constructeur B&Z Bouwtechniek B.V.
Aannemer Ecobouw Salland
Fotografie Marc Broekman
Mijn bijdrage


