Rots in de branding

Ontwerp
Op een royale kavel in Almere Oosterwold is een compacte, energiezuinige en betaalbare eengezinswoning gerealiseerd. Het vrijstaande woonhuis is duurzaam gebouwd, gericht op eenvoud en als groeiwoning op toekomstige uitbreidbaarheid voorbereid. De indeling van het huis is efficiënt en praktisch georganiseerd waarmee de leefruimte maximaal kan worden benut. Om binnen de schil van het huis zoveel mogelijk gebruiksoppervlakte te behouden is gekozen om de buitenwanden compact uit te voeren met een houtskelet opbouw en een afwerking van stucwerk aan de buitenzijde. Gelegen aan een bosrand heeft men vanuit de woonkamer en bovengelegen slaapkamers fraai zicht op het achtergelegen bos.

Programma
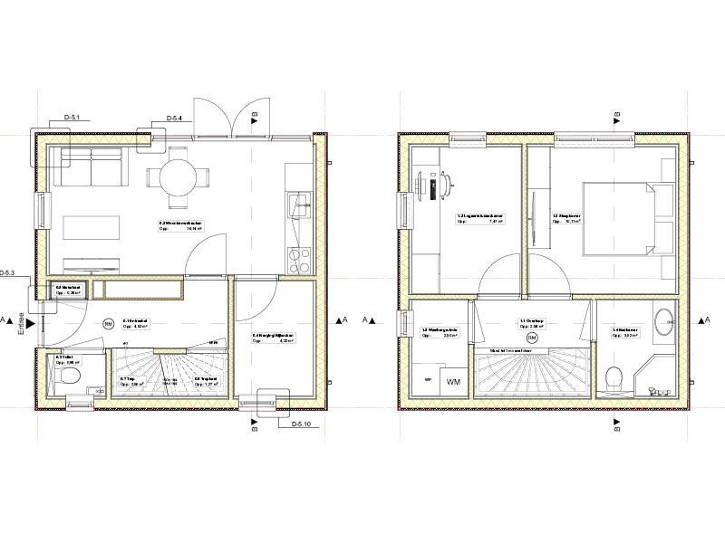
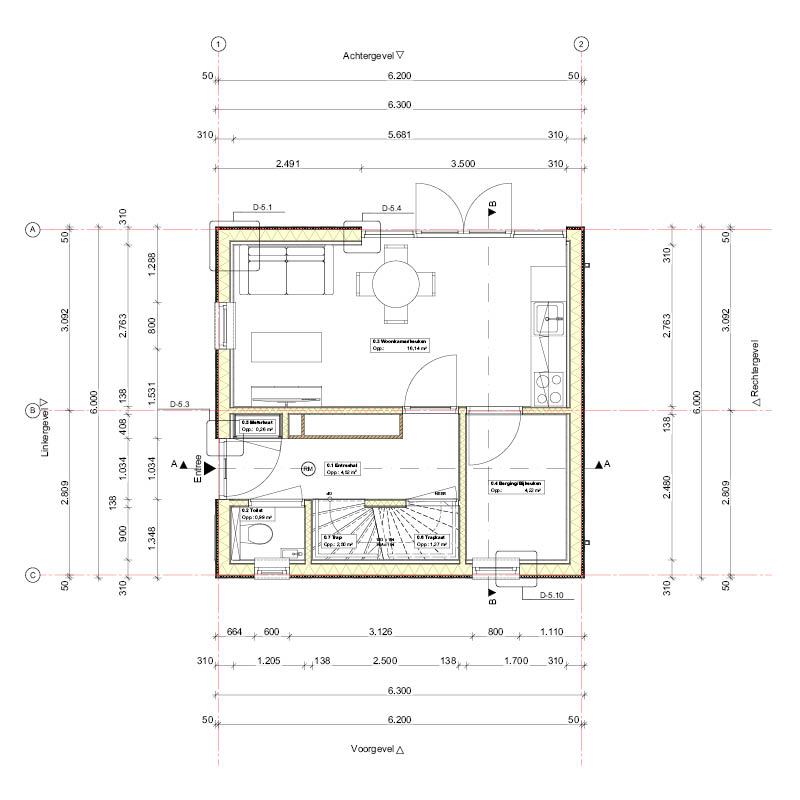
De woning heeft in zijn kleine oppervlakte van 75m² volwaardige ruimtes. Beneden is een entreehal met apart toilet. Onder de trap zijn de installaties voor de verwarming geplaatst. Vanuit de hal is de woonkamer en keuken te bereiken. Boven zijn twee slaapkamers, een badkamer en een washok te vinden.

Duurzaamheid
Bij het ontwerp van de woning is zo veel mogelijk gezocht naar de optimale verhouding van ruimte en energiezuinigheid. Zo is er een hoogwaardige relatief dunne schil toegepast met hoge RC waardes. De deuren en ramen zijn gevuld met triple glas. Op het dak liggen 9 zonnepanelen welke het huis zullen voorzien van de energiebehoefte. Om de energiebehoefte zo laag mogelijk te houden zijn er verschillende duurzame installaties toegepast. Een warmtepomp voorziet de vloerverwarming van warmte, een thermische batterij zorgt voor warm water en een WTW installatie zorgt voor de ventilatie zonder teveel warmte of koude verlies. In combinatie met een slimme thermostaat zullen de installaties optimaal werken. Daarnaast is ook een E-net installatie aangebracht. Deze zorgt voor slimme schakelingen van de verlichting.
Project informatie
Locatie Almere
Ontwerp 2019
Realisatie in aanbouw
Oppervlakte 75m²
Ontwerp Nick Rots
Constructeur IBZ raadgevende ingenieurs
Aannemer fundering Knol akkrum
Aannemer Casco Woodteq
Gevelstucwerk Afbouwteam
E-Installaties Anton Rots Elektra
W-Installaties De Bundel Installatietechniek
Mijn bijdrage





